15 Lauren Close, Virginia, SA, 5120

$745,000

Sold on 26/06/2024
  • 4
  • 2
  • 2
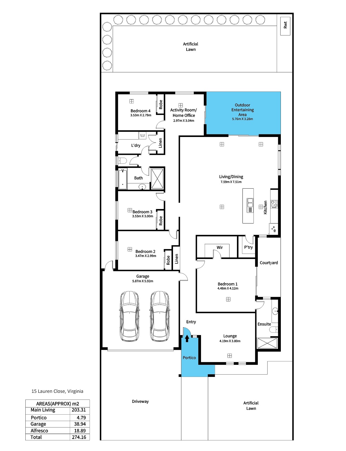
  • 495m2
  • 274m2

Live in luxury in this brand new 4-bedroom home with double garage!

Look no further than this charming house offering the perfect combination of modern luxury and small-town charm, making it the ideal place to call home. As soon as you step inside, you’ll be captivated by the grandeur and elegance of this spacious house.

This beautiful home features four decent bedrooms, two bathrooms, study, dual living areas, alfresco, spacious outdoors, and double garage. Every aspect from thoughtful design, landscaping, colour palette and surroundings merge to make a contemporary lifestyle.

The delightful home features:

– Attractive and individualistic front façade.
– 4 decent bedrooms.
– Walk in robe, ensuite and courtyard to master bedroom.
– Sliding built in robes to bedrooms 2, 3 and 4.
– Premium floating floorboards to living spaces and quality carpet to bedrooms and lounge.
– 2.7m high ceilings with LED downlights throughout.
– Ducted and zoned reverse-cycle air conditioning throughout.
– Designer kitchen with stone bench top, s/steel 900mm appliances, gas cooktop, double sink, contemporary tapware, dishwasher, pendant lights and walk in pantry.
– Ensuite and bathroom with premium basins & tapware, designer shower heads, semi-framed shower screens, and pendant lights.
– Decent laundry with storage.
– Double garage with automated contemporary panel lift door and internal and rear access.
– Gas instantaneous hot water system.
– Technology including NBN provision, Antenna, Video intercom & Security alarm system.
– Low maintenance landscaping including plants and artificial turf.
– Rainwater tank with pump
– Alfresco with tiled floor and much more….

Feel the home vibe at the open inspection with Gary Brar – Fab Realtors.

Disclaimer:

We have used our best endeavours in preparing this document to ensure the information contained is true and accurate but accept no responsibility and disclaim all liability in respect to any errors, omissions, inaccuracies, or misstatements contained. Prospective purchasers should make their own enquiries to verify the information contained in this document.

RLA 312162

Property Details

  • Land area: 495m2
  • Floor area: 274m2
  • Property type: residential
  • Property subtype: house

Location Map